Minicarregadeira skid steer elétrica ST30130TEV
Minicarregadeira skid steer elétrica de esteiras que entrega até 8 horas de uso com um único carregamento
- Capacidade da bateria
70.64kWh - Tipo da bateria
Fosfato de ferro e lítio - Carga nominal
1300kg - Peso operacional
4580kg
- Alimentada por um sistema de bateria de fosfato de ferro e lítio para um desempenho ecológico e com emissão zero. A bateria de 70,64 kWh suporta até 8 horas de operação contínua, atendendo às demandas de cargas de trabalho intensivas.
- Equipada com motores síncronos de ímã permanente duplo que fornecem potência alta e de rápida resposta com uma força de tração máxima de 35 kN para escaladas eficientes e trabalhos pesados.
- Possui um console de controle EBI, proporcionando manobrabilidade precisa e suave e reduzindo a fadiga do operador.
- Potência hidráulica de 30 kW com um fluxo hidráulico auxiliar de 85 L/min, compatível com uma ampla gama de acessório.
- Raio de giro mínimo de apenas 1600 mm, permitindo uma operação flexível em espaços de trabalho estreitos ou compactos.
Especificações
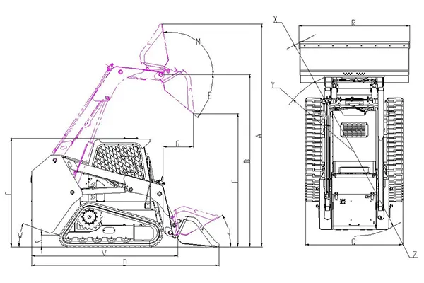
Dimensões básicas
| A | Altura de uso (totalmente elevada) | 4390mm |
| B | Altura da articulação (totalmente elevada) | 3393mm |
| C | Altura da unidade de proteção | 2140mm |
| D | Comprimento total (com caçamba) | 3695mm |
| E | Ângulo de inclinação para baixo (totalmente elevada) | 40° |
| F | Altura de despejo | 2625mm |
| G | Distância de despejo | 600mm |
| J | Ângulo de inclinação para cima | 30° |
| M | Ângulo máximo de inclinação para cima | 100° |
| Q | Largura total (sem caçamba) | 1920mm |
| S | Distância ao solo | 230mm |
| R | Largura da caçamba | 2180mm |
| W | Ângulo de saída | 20° |
| V | Comprimento total (sem caçamba) | 2885mm |
| Y | Raio de giro (sem caçamba) | 1600mm |
| X | Raio de giro (com caçamba) | 2430mm |
| Z | Raio de giro traseiro | 1660mm |

Parâmetros técnicos
Sistema de bateria
| Capacidade da bateria | 70.64kWh |
| Tipo da bateria | Fosfato de ferro e lítio |
Sistema de condução
| Potência | 2×35kW |
| Força de tração máxima | 35kN |
Sistema hidráulico
| Fluxo hidráulico para acessórios | 85L/min |
| Pressão | 21MPa |
| Potência | 30kW |
| Velocidade máxima | 2600rpm |
Parâmetros técnicos
| Carga nominal | 1300kg |
| Carga de tombamento | 2600kg |
| Peso operacional | 4580kg |
| Velocidade de deslocamento (baixa/alta) | 8/14km/h |
Configurações principais
| Modo de controle | Controle hidráulico |
| Motor | Bateria de fosfato de ferro e lítio |
| Motor de deslocamento | Motor síncrono de íman permanente |
| Console de controle | Console de controle EBI |
| Bomba de funcionamento | Bomba de óleo para engrenagens Casappa |
| Acoplamento rápido hidráulico | Acoplamento rápido modular FASTER |
| Estrutura do chassi | Estrutura integrada |
Acessórios
| Acessórios opcionais | Aplicações | Observações |
| Caçamba 4 em 1, martelo demolidor, plaina, soprador elétrico | Uso municipal e manutenção de estradas | A plaina e a valetadeira de disco requerem um sistema hidráulico de alto fluxo. |
| Planeadora de tampas de bueiros, caçamba misturadora de concreto, gancho de elevação | Troca de bueiros | A plaina para bueiros requer um sistema hidráulico de alto fluxo |
| Varredora angular, limpa-neve, soprador de neve | Remoção de neve e controle de gelo | O soprador de neve requer um sistema hidráulico de alto fluxo. |
| Transplantador de árvores, tesoura para árvores, cortador de grama, broca, triturador de madeira | Paisagismo, silvicultura, manutenção de pomares | |
| Máquina para limpeza de terrenos, tesoura para árvores, triturador de madeira | Manejo florestal e prevenção de incêndio | A máquina de limpeza de terrenos requer um sistema hidráulico de alto fluxo. |
Atenção:
Com os avanços tecnológicos contínuos, as especificações e configurações dos produtos estão sujeitas a alterações sem aviso prévio. Em caso de dúvida, prevalecerá a confirmação final fornecida pela nossa equipe de vendas internacionais.
Acessório opcional
Caçamba padrão
Caçamba profunda
Caçamba peneira
Acoplador rápido
Garfos para paletes
Broca
Lâmina para remover neve
Garra para toras de madeira
Garra para fardos redondos
Garra para fardos quadrados
Cortador de grama
Braço de elevação / Guindaste
Suas minicarregadeiras são adequadas para locais de trabalho ambientalmente sensíveis?
Suas minicarregadeiras são adequadas para locais de trabalho ambientalmente sensíveis?
Nossas minicarregadeiras elétricas operam com zero emissões e são alimentadas por sistemas de bateria de fosfato de ferro e lítio, tornando-as limpas, silenciosas e energeticamente eficientes. Elas são ideais para ambientes internos e locais de trabalho com regulamentos ambientais rigorosos.
Qual modelo é melhor para desempenho e operação estáveis em aplicações internas e externas?
Qual modelo é melhor para desempenho e operação estáveis em aplicações internas e externas?
A minicarregadeira com rodas possui uma estrutura simples de cilindro hidráulico e transmissão direta sem folga, garantindo operação suave e manobrabilidade compacta. É adequada para espaços estreitos, como calçadas, áreas residenciais e praças, bem como para canteiros de obras e fazendas de gado.
Qual carregadeira permite trocas rápidas de acessórios para diferentes cenários de trabalho?
Qual carregadeira permite trocas rápidas de acessórios para diferentes cenários de trabalho?
A minicarregadeira de esteiras foi projetada com um sistema hidráulico simples e transmissão suave. Ela suporta uma interface de acessórios multifuncional, permitindo trocas rápidas de ferramentas para diversas tarefas. A operação é intuitiva, eficiente e adequada para vários ambientes.
