Minicarregadeira skid steer elétrica ST3090EV
Minicarregadeira skid steer elétrica de rodas que entrega até 8 horas de operação com carga única
- Capacidade da caçamba
0.5m³ - Peso operacional
3500kg - Velocidade de deslocamento
14km/h - Carga nominal
1000kg
- Vida útil prolongada da bateria, proporcionando 6 a 8 horas de operação contínua por carga para uso diário eficiente
- Sistema de energia de alta eficiência que combina motores de acionamento 4×12 kW com um sistema hidráulico de 30 kW para um desempenho suave e rápida resposta
- Carga nominal de 1000 kg e capacidade da caçamba de 0,5 m³, oferecendo excelente capacidade de carregamento e manejo de materiais em espaços compactos
Especificações
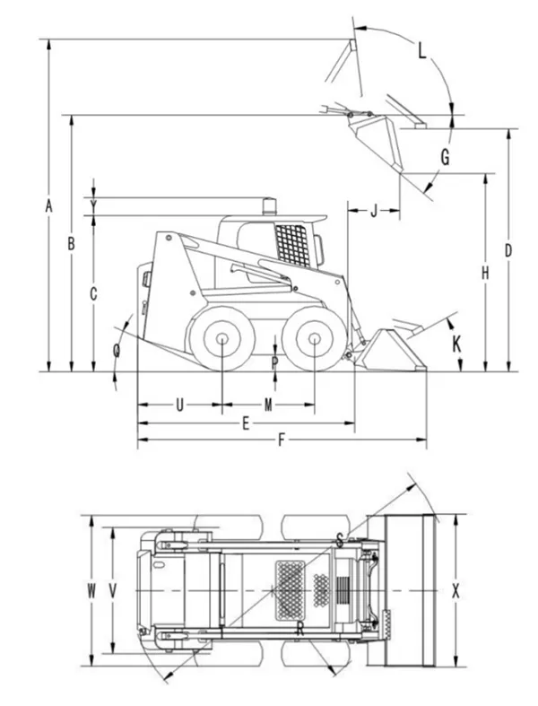
| A | Altura total | 4270mm |
| B | Altura do pino da caçamba na elevação máxima | 3265mm |
| C | Altura até o topo da cabine | 2007mm |
| D | Altura até a caçamba nivelada | 3090mm |
| E | Comprimento total (sem caçamba) | 2571mm |
| F | Comprimento total (com caçamba) | 3498mm |
| G | Ângulo máximo de despejo | 35° |
| H | Altura de despejo | 2551mm |
| J | Alcance de despejo | 603mm |
| k | Ângulo traseiro no solo | 30° |
| L | Ângulo traseiro na altura de elevação | 103° |
| M | Distância entre eixos | 1020mm |
| P | Distância ao solo | 185mm |
| Q | Ângulo de saída | 22° |
| R | Raio de giro central (sem caçamba) | 1235mm |
| S | Raio de giro central | 2110mm |
| T | Raio de giro traseiro | 1643mm |
| U | Projeção do para-choque atrás do eixo traseiro | 1080mm |
| V | Largura | 1469mm |
| W | Largura total (pneus) | 1740mm |
| X | Largura total (caçamba) | 1800mm |
| Y | Altura da luz de alarme | 190mm |

Parâmetros técnicos
| Capacidade da caçamba | 0.5m³ |
| Peso operacional | 3500kg |
| Velocidade de deslocamento | 14km/h |
| Carga nominal | 1000kg |
| Tipo do pneu | 12-16.5 |
| Bateria | |
| Tipo de bateria | Lithium ion |
| Voltagem da bateria | 380V |
| Capacidade da bateria | 53.6kWh |
| Tempo de referência de uso | 6-8h |
| Sistema de condução | |
| Tipo do motor | Motor síncrono de íman permanente |
| Potência do motor | 4×12kW |
| Sistema hidráulico | |
| Tipo do motor | Motor síncrono de íman permanente |
| Potência do motor | 30kW |
| Fluxo hidráulico | 70l/min |
| Pressão hidráulica | 215bar |
Atenção:
Com os avanços tecnológicos contínuos, as especificações e configurações dos produtos estão sujeitas a alterações sem aviso prévio. Em caso de dúvida, prevalecerá a confirmação final fornecida pela nossa equipe de vendas internacionais.
Acessório opcional
Caçamba padrão
Caçamba profunda
Caçamba peneira
Acoplador rápido
Garfos para paletes
Broca
Lâmina para remover neve
Garra para toras de madeira
Garra para fardos redondos
Garra para fardos quadrados
Cortador de grama
Braço de elevação / Guindaste
Suas minicarregadeiras são adequadas para locais de trabalho ambientalmente sensíveis?
Suas minicarregadeiras são adequadas para locais de trabalho ambientalmente sensíveis?
Nossas minicarregadeiras elétricas operam com zero emissões e são alimentadas por sistemas de bateria de fosfato de ferro e lítio, tornando-as limpas, silenciosas e energeticamente eficientes. Elas são ideais para ambientes internos e locais de trabalho com regulamentos ambientais rigorosos.
Qual modelo é melhor para desempenho e operação estáveis em aplicações internas e externas?
Qual modelo é melhor para desempenho e operação estáveis em aplicações internas e externas?
A minicarregadeira com rodas possui uma estrutura simples de cilindro hidráulico e transmissão direta sem folga, garantindo operação suave e manobrabilidade compacta. É adequada para espaços estreitos, como calçadas, áreas residenciais e praças, bem como para canteiros de obras e fazendas de gado.
Qual carregadeira permite trocas rápidas de acessórios para diferentes cenários de trabalho?
Qual carregadeira permite trocas rápidas de acessórios para diferentes cenários de trabalho?
A minicarregadeira de esteiras foi projetada com um sistema hidráulico simples e transmissão suave. Ela suporta uma interface de acessórios multifuncional, permitindo trocas rápidas de ferramentas para diversas tarefas. A operação é intuitiva, eficiente e adequada para vários ambientes.





