Minicarregadeira skid steer JC45V
Minicarregadeira skid steer de rodas com capacidade nominal de operação de 850kg para terrenos acidentados e canteiros de obras
- Peso operacional
3200kg - Carga nominal
850kg - Capacidade da caçamba
0.45m³ - Velocidade máxima
12km/h
Especificações
| Modelo | JC45V |
| Peso operacional | 3200kg |
| Carga máxima | 850kg |
| Capacidade da caçamba | 0.45m³ |
| Velocidade máxima | 12km/h |
| Tração máxima | ≥25.40kN |
| Ruptura máxima | ≥18.4kN |
| Tempo de elevação do braço | 7s |
Motor
| Fabricante | Xinchai |
| Modelo | C490BPG |
| Potência nominal | 45kW/2500rpm |
| Cilindradas do motor | 2.27L |
| Padrão de emissão | China II |
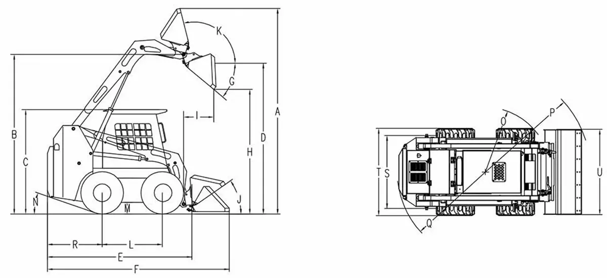
Dimensões
| A | Altura operacional total | 4000mm |
| B | Altura até o pino da dobradiça da caçamba | 3100mm |
| C | Altura até o topo da cabine | 2116mm |
| D | Altura até a parte inferior da caçamba nivelada | 2933mm |
| E | Comprimento total sem caçamba | 2750mm |
| F | Comprimento total com caçamba | 3490mm |
| G | Ângulo de despejo na altura máxima | 40° |
| H | Altura de despejo | 2400mm |
| I | Alcance de despejo | 750mm |
| J | Recuo da caçamba no solo | 30° |
| K | Recuo da caçamba na altura máxima | 100° |
| L | Distância entre eixos | 991mm |
| M | Distância ao solo | 205mm |
| N | Ângulo de partida | 20° |
| O | Raio de giro dianteiro sem caçamba | 1198mm |
| P | Raio de giro dianteiro | 1958mm |
| Q | Raio de giro traseiro | 1728mm |
| R | Eixo traseiro até o para-choque | 1208mm |
| S | Largura das esteiras | 1500mm |
| T | Largura | 1880mm |
| U | Largura da caçamba | 1880mm |
Acessório opcional
Caçamba padrão
Caçamba profunda
Caçamba peneira
Acoplador rápido
Garfos para paletes
Broca
Lâmina para remover neve
Garra para toras de madeira
Garra para fardos redondos
Garra para fardos quadrados
Cortador de grama
Braço de elevação / Guindaste
Qual carregadeira de rodas é adequada para espaços de trabalho compactos e áreas ambientalmente sensíveis?
Qual carregadeira de rodas é adequada para espaços de trabalho compactos e áreas ambientalmente sensíveis?
A carregadeira de rodas elétrica frontal é ideal para locais confinados. Com um corpo compacto, largura estreita e raio de giro pequeno, ela usa um sistema de acionamento elétrico puro alimentado por uma bateria de lítio de alto desempenho. Ela oferece zero emissões e operação silenciosa, tornando-a adequada para projetos urbanos, fábricas e áreas agrícolas com padrões ambientais rigorosos.
Qual modelo é recomendado para operações de mineração em grande escala que exigem maior capacidade da caçamba e maior alcance de despejo?
Qual modelo é recomendado para operações de mineração em grande escala que exigem maior capacidade da caçamba e maior alcance de despejo?
A carregadeira frontal a diesel foi projetada para aplicações pesadas. Ela possui uma capacidade de caçamba de 3 m³ e uma altura máxima de despejo de 3.300 mm, proporcionando excelente eficiência no manuseio de materiais e adaptabilidade para operações intensivas de mineração e carregamento.
Qual carregadeira é adequada para operações florestais que exigem forte aderência e desempenho estável ao manusear toras?
Qual carregadeira é adequada para operações florestais que exigem forte aderência e desempenho estável ao manusear toras?
A carregadeira de rodas a diesel para manuseio de toras é equipada com um braço de garra estendido projetado especificamente para madeira de grande diâmetro. Ela garante uma aderência firme e uma transferência eficiente das toras. A combinação de uma caixa de câmbio Beilian de eixo fixo e um conversor de torque Shantui proporciona fácil manutenção, transmissão de potência suave e resistência superior à sobrecarga.
A carregadeira de rodas a diesel para manuseio de pedras pode operar com eficácia em terrenos acidentados ou irregulares?
A carregadeira de rodas a diesel para manuseio de pedras pode operar com eficácia em terrenos acidentados ou irregulares?
A carregadeira de rodas a diesel para manuseio de blocos possui tração nas quatro rodas e forte tração, combinadas com alta distância ao solo para lidar com condições desafiadoras do local. Seu grande ângulo de deslocamento do contrapeso aumenta a capacidade de subida, enquanto a capacidade máxima de elevação de 16 toneladas, a longa distância entre eixos e a estrutura reforçada garantem a estabilidade operacional. A altura máxima de descarga de 3.450 mm permite carregamento e despejo eficientes em superfícies irregulares.






